Os edifícios
Categoria
Aluguel
Corporativo
Setor Comercial Sul
Ano de construção
1974
Ano de retrofit
2023
Valor
Sob consulta
Programa
Planta livre, customizável
Área
Lojas 383m²
Localização
SCS
Arquitetura
João Filgueiras Lima
Área
Pavimento 400m²

A varanda do Setor Comercial Sul





A reocupação de um marco arquitetônico

A história de um ícone
O conjunto arquitetônico do Morro Vermelho ocupa duas projeções da Quadra 01 do Setor Comercial Sul, na Zona Central de Brasília. É composto por duas torres de 16 pavimentos, com orientação Norte-Sul, posicionadas de forma paralela e rotacionada, deslocadas poucos metros entre si a fim de desimpedir a vista de ambas as torres e dar maior amplitude ao setor no eixo de pedestres que passa entre o conjunto e as outras torres da quadra.
Entre as duas torres, uma marquise conecta os halls de entrada das duas edificações em um caminho sombreado protegido do sol e da chuva, cortando uma praça que articula as duas torres com jardins desenhados pela paisagista Alda Rabello. Em vez de bolsões de estacionamento, como acontece entre todas as outras torres da quadra, o espaço foi liberado para priorizar a passagem e ocupação por parte do pedestre, servindo como foyer de entrada para os caminhantes que vêm da Galeria dos Estados e a estação de metrô. As vagas de estacionamento que não estão no nível do térreo foram posicionadas em dois andares de subsolo cuja entrada e saída ocorre em um nível abaixo da praça, visando evitar o cruzamento entre o fluxo de automóveis e o fluxo de pedestres, conforme imaginado por Lúcio Costa para o Setor Comercial em seu relatório do Plano Piloto.






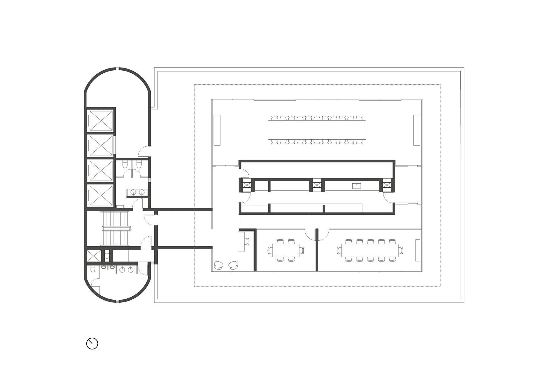
Opções de planta


Opções de planta






Opções de planta


Modernista Customizável
Mais imóveis

Imóveis
Especiais

Imóveis
Secretos




